|
[sro562]野間台住宅 9棟
福岡市南区多賀2丁目
2026年2月、室内全面リノベーション工事。福岡市立大池小学校前に立地。南北2面バルコニー、高台からの夜景の綺麗な眺望。夜の周辺は、閑静です。2面採光の通風の良いお部屋です。
|
福岡市立大池小学校真裏に所在。西鉄高宮駅からは、徒歩15分圏内と、少し距離はあるものの、坂を下れば、西鉄バス「野間三丁目」バス停があり、博多、天神方面の交通アクセスも良いです。目の前が小学校、保育園(大池コスモス保育園)ですので、昼間は子供達の元気な声で活気があります。 高台なので眺望もよく、開放感があります。また、夜は静かで夜景も綺麗です。周辺の自然環境も良く、季節の草花、木も楽しめます。
全体の管理状態につきましては、管理組合がしっかり機能されており、古いながらも全体的に荒れた印象のない状態です。室内は、南北に2面バルコニーがあり、明るく、採光、通風の取れた住み心地の良いお部屋です。
また、2026年2月に室内を全面リノベーション工事を行い、水回備品、配管新調、床面全面フロアタイル貼に変更、オール洋室に改造いたしました。綺麗な室内になっておりますので、ご検討頂ける方は、是非お問い合わせ下さい。
物件のイメージ
|
 2026年2月 室内全面リノベーション工事。オール洋室、水回備品新調交換。現況を優先いたします。
 玄関部分。2026年2月 建具新調、室内全面リノベーション工事。
 玄関側洋室部分。2026年2月 建具新調、洋室へ間取変更。室内全面リノベーション工事。
 玄関側洋室部分。2026年2月 建具新調、洋室へ間取変更。室内全面リノベーション工事。クローゼットに変更。
 LD部分。室内全面リノベーション工事。
 LDK部分。室内全面リノベーション工事。キッチン部分をカウンターシステムキッチンへ変更。
 LDK部分。室内全面リノベーション工事。キッチン部分をカウンターシステムキッチンへ変更。
 キッチン部分。カウンターシステムキッチンへ変更。
 LDK部分。室内全面リノベーション工事。キッチン部分をカウンターシステムキッチンへ変更。
 バルコニー側洋室部分。2026年2月 建具新調、洋室へ間取変更。室内全面リノベーション工事。クローゼットに変更。
 北側洋室部分。2026年2月 建具新調、洋室へ間取変更。室内全面リノベーション工事。クローゼットに変更。
 バルコニー側洋室部分。2026年2月 建具新調、洋室へ間取変更。室内全面リノベーション工事。クローゼットに変更。
 南向きの採光明るいバルコニーです。
 南向きの採光明るいバルコニーです。
 バルコニーからの眺望です。(夕方に撮影しています。)
 浴室部分。浴室に窓有。全面リニューアル済
 トイレ。トイレにも窓有。全面リニューアル済
 洗面台もリニューアル。
 室内洗濯機置場は、キッチン横に移設したうえで、リニューアル。
|
物件情報の詳細
|
|
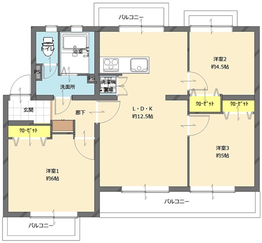
間取 |
3LDK |
価格 |
1,580万円 |
|
間取詳細 |
|
管理費/修繕積立金 |
3,000円/10,000円 |
|
専有/バルコニー |
60.02u/− |
販売区画 |
/ |
|
所在階/建物階 |
3階/5階建 |
建物構造 |
RC造 |
|
駐車場 |
3,000円/台 管理組合事務所へ要確認。(現状空車の有無につきましては不明です。) |
建物:延べ面積 |
−:− |
|
交通手段 |
西鉄天神大牟田線 高宮駅 徒歩15分、西鉄バス野間三丁目バス停 徒歩7分 |
築年月/完成予定 |
1972年12月(築54年) |
|
権利形態 |
所有権 |
国土法 |
|
|
引渡し日 |
相談 |
取引形態 |
専任媒介 |
|
設備等
|
 |
インターホン |
|
 |
給湯 |
|
 |
カウンターキッチン |
|
 |
システムキッチン |
|
 |
シャワー |
|
 |
バス・トイレ別 |
|
 |
室内洗濯機置場 |
|
 |
バルコニー |
|
 |
駐輪場 |
|
 |
CATV |
|
|
|
その他
|
■外部オーナー負担金(月額)2,500円(購入された方がお住まいになられない場合に限り徴収) ■2026年2月 室内全面リノベーション工事。 −オール洋室へ間取変更。水回り備品、設備、配管新品交換、照明器具交換済。
※現況有姿渡し。
|
|
物件資料
|
|
地図
|
|
|
|